Sự phát triển vượt bậc của công nghệ đã định hình lại ngành xây dựng, mang đến những giải pháp thi công hiệu quả, tiết kiệm sức người và chi phí. Nổi bật trong số đó là phương pháp robot ép cọc bê tông thủy lực tự hành, một bước tiến cách mạng giúp chinh phục các công trình phức tạp một cách nhanh chóng và chính xác. Bài viết này sẽ đi sâu vào quy trình thi công hiện đại này, cung cấp cái nhìn toàn diện và các thông tin báo giá cần thiết cho quý khách hàng.
Quy Trình Thi Công Ép Cọc Bê Tông Bằng Robot Thủy Lực Tự Hành
Việc áp dụng robot ép cọc bê tông không chỉ nâng cao năng suất mà còn đảm bảo chất lượng công trình. Quy trình chuẩn bao gồm các bước được thực hiện một cách khoa học và bài bản.
Công Tác Chuẩn Bị Kỹ Lưỡng
Trước khi bất kỳ hoạt động thi công nào bắt đầu, khâu chuẩn bị đóng vai trò then chốt. Điều này bao gồm việc đảm bảo đầy đủ vật tư, nhân lực có chuyên môn, và các thiết bị máy móc cần thiết.
Kiểm tra toàn diện tình trạng hoạt động của máy móc, đặc biệt là hệ thống di chuyển và bộ phận ép. Đồng thời, các cọc bê tông cũng cần được kiểm tra kỹ lưỡng để phát hiện sớm các vết nứt, vỡ, đảm bảo chất lượng và tiến độ thi công.
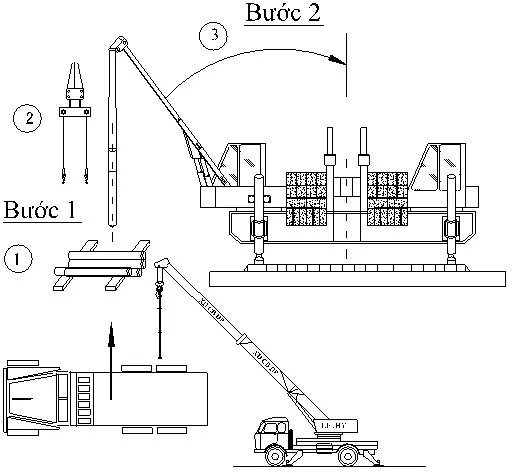
Tập Kết Cọc và Đưa Vào Máy Ép
Sau khi hoàn tất công tác chuẩn bị và kiểm tra, máy móc sẽ được vận chuyển và tập kết tại công trình. Các thiết bị sẽ được lắp ráp sẵn sàng cho quá trình thi công.
Việc vận chuyển và tập kết cọc bê tông được thực hiện cẩn thận. Dựa trên bản vẽ thiết kế, các kỹ sư sẽ xác minh chính xác vị trí tim cọc. Với sự hỗ trợ của máy ép robot thủy lực tự hành, thiết bị sẽ tự động di chuyển đến vị trí đã xác định để tiến hành ép cọc.
Cận cảnh máy ép robot đang chuẩn bị đưa cọc vào vị trí
Điều Chỉnh Vị Trí Mũi Cọc Chính Xác
Trước khi ép, việc đưa cọc vào đúng vị trí và đảm bảo cọc thẳng đứng là cực kỳ quan trọng. Sự sai lệch dù nhỏ cũng có thể dẫn đến tình trạng cọc bị nghiêng, xiên, làm giảm hiệu quả ép và tiềm ẩn nguy cơ gãy cọc.
Máy ép robot giúp định vị mũi cọc một cách chính xác, giảm thiểu tối đa sai số trong quá trình này.
Kỹ thuật viên đang căn chỉnh mũi cọc trước khi ép
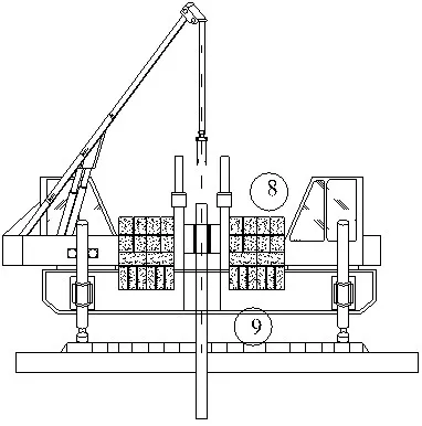
Khởi Động Máy Ép Robot và Ép Thử Nghiệm
Khi cọc đã được đưa vào lồng ép và định vị chính xác tại tim cọc, máy ép thủy lực sẽ được khởi động. Trong suốt quá trình ép, việc theo dõi đồng hồ áp lực là cần thiết để đảm bảo lực ép đạt đến mức tấn theo yêu cầu của bản thiết kế.
Phương pháp robot ép cọc bê tông thủy lực tự hành mang lại độ chính xác cao về vị trí và lực ép, đồng thời rút ngắn đáng kể thời gian thi công so với các phương pháp truyền thống.
Máy ép robot đang hoạt động, hiển thị thông số lực ép
Ép Hết Chiều Sâu và Đảm Bảo Độ Vuông Góc
Sau khi hoàn thành ép cọc thử nghiệm, quy trình tiếp tục với việc đưa cọc tiếp theo vào bộ ép thủy lực. Cọc trên và cọc dưới cần được đặt thẳng hàng, không bị lệch nhau.
Trong trường hợp cọc vuông, bản mã sẽ được sử dụng để hàn hai đầu cọc lại với nhau, đảm bảo sự ổn định trong quá trình ép. Đối với cọc ly tâm, việc đặt chuẩn xác là đủ, chỉ cần que hàn để cố định quanh đầu hai thân cọc.
Quá trình ép sẽ tiếp tục cho đến khi đạt đủ các chỉ số P min và P max theo đúng quy định trong bản thiết kế.
Nghiệm Thu và Bàn Giao Công Trình
Sau khi hoàn tất toàn bộ quá trình ép cọc, công tác nghiệm thu sẽ được tiến hành. Các bên liên quan sẽ kiểm tra, xác nhận và tiến hành bàn giao công trình theo đúng quy định.
Lưu Ý Quan Trọng Khi Thi Công Bằng Máy Robot Tự Hành
Trong quá trình thi công, việc tuân thủ các nguyên tắc và xử lý tình huống phát sinh là rất quan trọng để đảm bảo chất lượng.
- Trường hợp 1 (TH1): Khi tim cọc ép đạt đến độ sâu thiết kế và lực ép đạt P min, máy sẽ tự động dừng lại.
- Trường hợp 2 (TH2): Nếu tim cọc đạt độ sâu thiết kế nhưng chưa đạt lực ép P min, máy sẽ tiếp tục ép cho đến khi đạt P min mới dừng.
Đơn vị giám sát đóng vai trò tư vấn và giám sát chặt chẽ, đảm bảo quá trình ép cọc tuân thủ bản thiết kế, mang lại chất lượng tối ưu cho từng công trình.
Trong trường hợp gặp các yếu tố địa chất phức tạp như cát, đá dưới lòng đất, giám sát viên cần báo cáo ngay để đội thi công có phương án xử lý phù hợp, đảm bảo mặt bằng thi công và chất lượng công việc không bị ảnh hưởng.
Bảng Báo Giá Ép Cọc Bê Tông Bằng Robot Thủy Lực Tự Hành
Dưới đây là bảng báo giá chi tiết về cọc bê tông đúc sẵn và chi phí thi công ép cọc bằng giàn máy Robot thủy lực tự hành.
Báo Giá Cọc Bê Tông Đúc Sẵn Tại Xưởng
| Hạng mục cọc bê tông | Mác cọc bê tông | Chiều dài Cọc/m | Kích thước | Báo giá/md (VNĐ) |
|---|---|---|---|---|
| Cọc PHC D300 Đúc sẵn | 600 – 800 | 6,7,8,9,10,11,12 | D300 | 200.000 – 210.000 |
| Cọc PHC D350 Đúc sẵn | 600 – 800 | 6,7,8,9,10,11,12 | D350 | 260.000 – 270.000 |
| Cọc PHC D400 Đúc sẵn | 600 – 800 | 6,7,8,9,10,11,12 | D400 | 300.000 – 350.000 |
| Cọc PHC D500 Đúc sẵn | 600 – 800 | 6,7,8,9,10,11,12 | D500 | 430.000 – 460.000 |
| Cọc PHC D600 Đúc sẵn | 600 – 800 | 6,7,8,9,10,11,12 | D600 | 540.000 – 560.000 |
| Cọc 200×200 đúc sẵn | 250 | 3,4,5,6 | 200×200 | 140.000 – 150.000 |
| Cọc 250×250 đúc sẵn | 250 | 3,4,5,6,7 | 250×250 | 195.000 – 210.000 |
| Cọc 300×300 đúc sẵn | 250 | 3,4,5,6,7,8 | 300×300 | 290.000 – 310.000 |
| Cọc 350×350 đúc sẵn | 250 | 3,4,5,6,7,8 | 350×350 | 350.000 – 370.000 |
| Cọc 400×400 đúc sẵn | Liên Hệ | 3,4,5,6,7,8 | 400×400 | Liên hệ |
Lưu ý: Thép nhà máy bao gồm: Việt Đức, Việt Úc, Hòa Phát, Thái Nguyên.
Báo Giá Hạng Mục Thi Công Ép Cọc Bằng Giàn Máy Robot Thủy Lực Tự Hành
| Hạng mục thi công Robot | Đơn giá thi công |
|---|---|
| Nếu khối lượng thi công > 1000 md | 40.000 – 60.000 VNĐ/md |
| Nếu khối lượng thi công ≤ 1000m (Trọn gói) | 60.000.000 – 90.000.000 VNĐ / Công trình |
Liên hệ với chúng tôi để nhận được tư vấn chi tiết và báo giá ép cọc bê tông móng nhà tốt nhất.
Website: Epcocbetonghanoi.vn
Hotline: 0987.025.058
Email: betongthanglongchem.com@gmail.com
Ngày cập nhật 14/01/2026 by Văn Vũ

Mình là Vũ quản lý nội dung cho SANY với hơn 7 năm kinh nghiệm trong mảng sản xuất máy xây dựng tại thị trường Việt Nam — Đại diện chính thức phân phối thiết bị của Tập đoàn SANY.









